Ático con Ascensor y 2 terrazas grandes
Ático con Ascensor y 2 terrazas grandes
Venta

Ático con Ascensor y 2 terrazas grandes

279.000€
Descripción

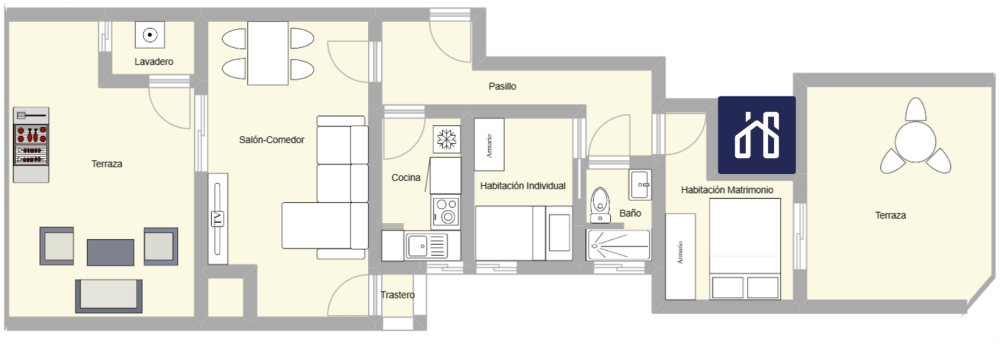
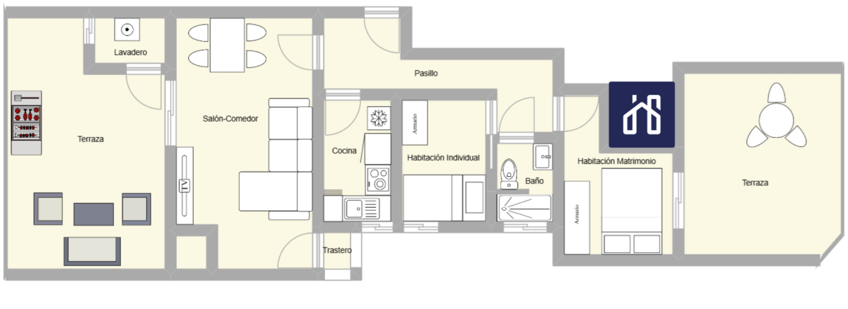
Ático con ascensor y dos terrazas totalmente reformado, 82m2 de piso y 40m2 de terrazas listo para entrar a vivir. La vivienda dispone de 2 habitaciones, un amplio salón-comedor de 28 m² con salida directa a una agradable terraza, ideal para disfrutar del aire libre. Cocina recientemente reformada, baño de 3 piezas con plato de ducha, ventanas de aluminio, calefacción a gas y aire acondicionado para mayor confort durante todo el año.

Finca con ascensor y acceso adaptado para personas con movilidad reducida. Ubicado en una zona con todos los servicios: centros médicos como CAP Chafarinas y CAP Rio de Janeiro, colegios, supermercados (Mercadona, Lidl, Condis), bancos, farmacias, parques y zonas verdes. Muy bien comunicado con transporte público: metro L4 Via Júlia, L3-L4 Trinitat Nova y múltiples líneas de autobús.


Gastos e impuestos NO incluidos en el precio.

General
Icono Casa
REFERENCIA
VENTA 7
Icono Tipo
TIPOLOGÍA
Piso
Icono Habitaciones
HABITACIONES
2
Icono Lavabo
BAÑOS
1
Icono Medidas
SUPERFICIE
122 m2
Localización
Ciudad
Barcelona
Distrito
Nou Barris
Barrio
La Prosperitat
Detalles
Referencia
VENTA 7
Precio
279.000€
Tipo de propiedad
Piso
Habitaciones
2
Superficie
122 m2
Calificación de emisiones
G
Baños
1
Certificado energético
G
Características
Icono Check
Aire acondicionado
Icono Check
Ascensor
Icono Check
Calefacción
Icono Check
Cocina equipada
Icono Check
Horno
Icono Check
Lavadero
Icono Check
Terraza
Icono Check
Trastero
Planos
Imagen de Plano
Visita virtual
Dirección Aproximada
Icono Home
Propiedades recientes